



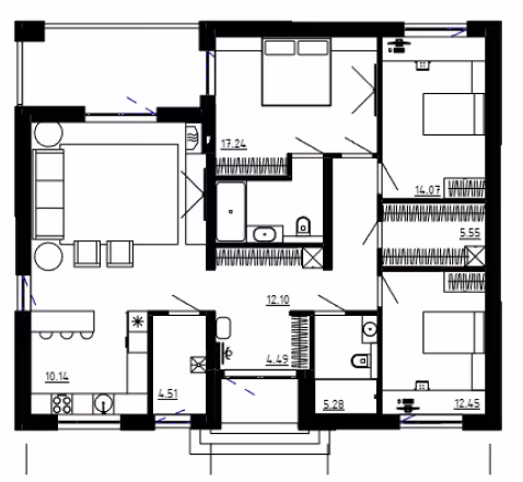
Американка – це практично, сучасно та мінімалістично. 120 м2, 1 поверх, 3 спальні (одна мастер з санвузлом) і вітальня суміжна з кухнею. Будинок розташовується на земельній ділянці орієнтовно 11 соток.
Цей мінімалістичний проєкт реалізовуємо для вас під ключ: зі штукатуркою, розведеною електрикою та сантехнікою, встановленими вікнами, дверима та всіма нюансами.
Ви заходите вже на ремонт. «Сімейна Фортеця» – будуємо!


Замовте
зворотній дзвінок